學校某種程度上類似一個小型的城市,建筑、交通、景觀的相互交織形成了物理空間,不同年齡的學生與教師組成了小型的人類社會。如今,我們所居住的城市物理空間正隨著人們生活方式的改變而不斷地創造出新的事物,學校亦然。

校園遠景
傳統的校園規劃突出教學區,忽視生活區和交流活動區,而對于新時代的教育建筑而言,校園不僅是傳授知識和進行研究的場所,更是全面提高綜合素質的生活環境。與傳統的講授式教學不同,現代的教學模式更注重體驗式教學,主張學生從生活中去體驗,從實踐中去學習。

學校主入口

西側沿街立面
正所謂“工欲善其事必先利其器”,我們將體驗式教學這種時新的模式落實于校園建筑內,從空間硬件上加強了對新型教學模式的表達,令校方所期望的教學模式在良好的物理平臺中得以實施。

平陵書院牌坊

中央庭院

教學樓西

教學樓立面
根據實際情況,設計初始我們制定了三個設計目標:
1)從整體校園規劃層面出發設計體驗式教學空間,針對校方對體驗式教學的理解與構想,結合學生的興趣設計貫穿校園的體驗式空間體系。為學生的交往交流與日常活動提供更多的可能性與多元化的空間。
2)從教學單元層面出發設計體驗式教學單元,改變傳統講授式教學的教室布置形式,以一種變化的、非固定的單元教室取而代之,以適應日益變化的全新教學模式。
3)重視學校歷史,決不因日新的教學模式變化而完全舍棄學校過去的歷史文化底蘊。

教學內院

教學樓立面
我們摒棄了千篇一律的標準化、裝配式建造方式,針對各種不同的新型教學模式,積極思考和探索個中差異與共性,不斷嘗試新的校園建筑空間。

教學內院

教學內院

教學內院

校園局部

校園局部

校園局部

校園局部

校園局部

校園局部

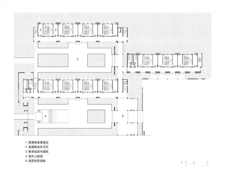
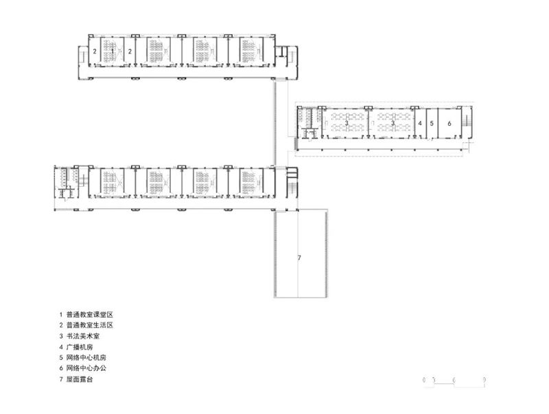
教學區一層平面-北

教學區一層平面-南

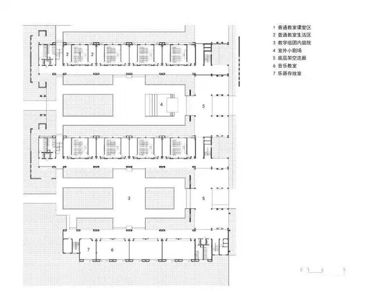
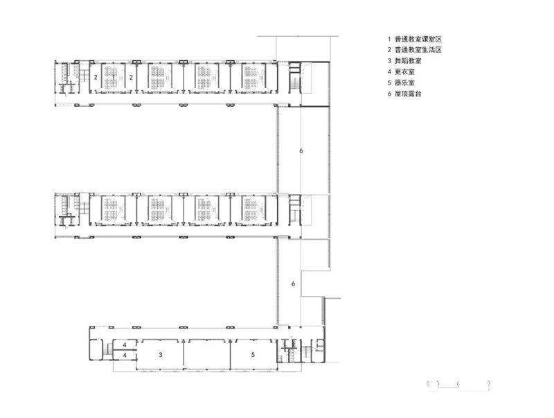
教學區二層平面-北

教學區二層平面-南

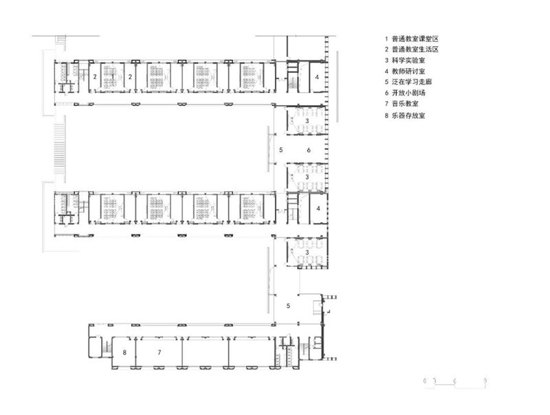
教學區三層平面-北

教學區三層平面-南

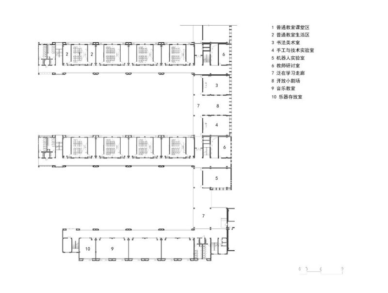
教學區四層平面-北

教學區四層平面-南

教學樓南立面

教學樓北立面

教學樓西立面

教學樓東立面
教學樓剖面圖

泛學習走廊示意

體驗式教學單元
來源:愿景科技
-- END --

